estudio arquitectura santiago

Proyectos de Arquitectura

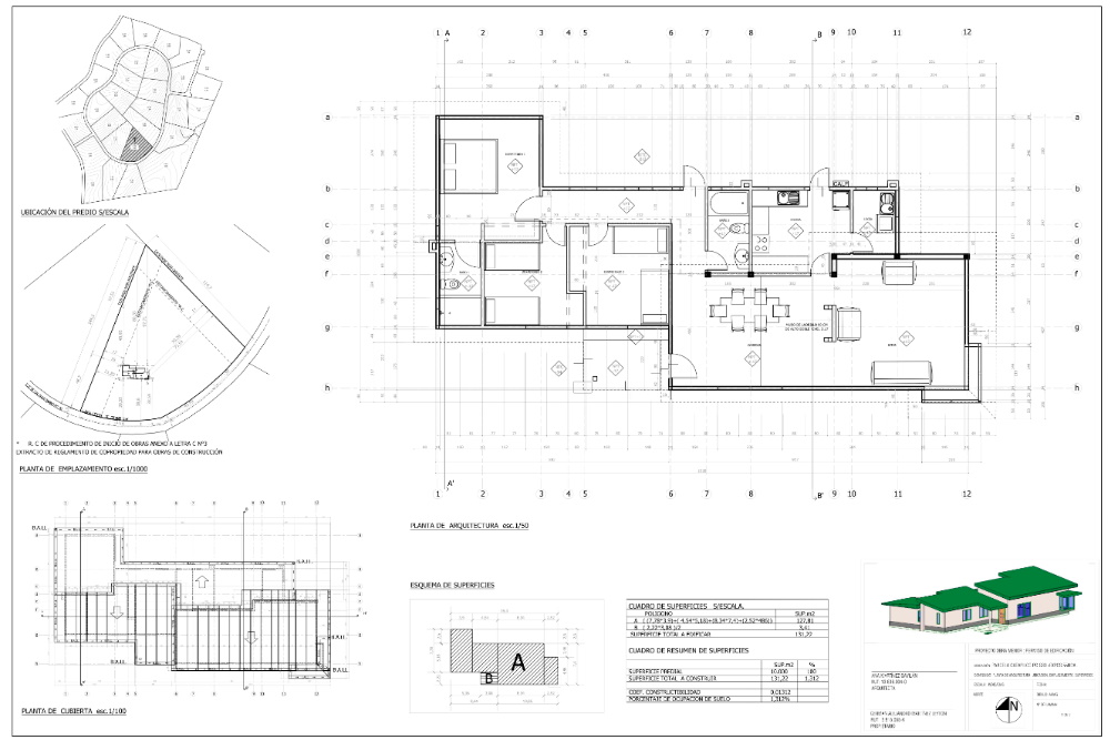
Proyecto Horizonte de Cerros Verdes

Arquitecta: Ana Martínez Gavilán

Este proyecto de 135m2 se encuentra ubicado en la parcela G30 del condominio la foresta de Zapallar, al norte de Catapilco emplazándose en una zona de cerros verdes armonizando con el entorno.


Cuenta con 3 dormitorios, 2 baños, living, comedor, cocina y logia, está orientado para recibir la mayor iluminación posible enmarcando las vistas principales sin alterar la ubicación funcional de los espacios.








Nuestro Equipo

arquitectas chilenas
  • Ana Martínez Gavilán


  • Arquitecta


  • +569 9924 0717


  • Trayectoria
arquitectas de chile
  • Paola Rojas Vega


  • Arquitecta


  • +569 7389 1863


  • Trayectoria